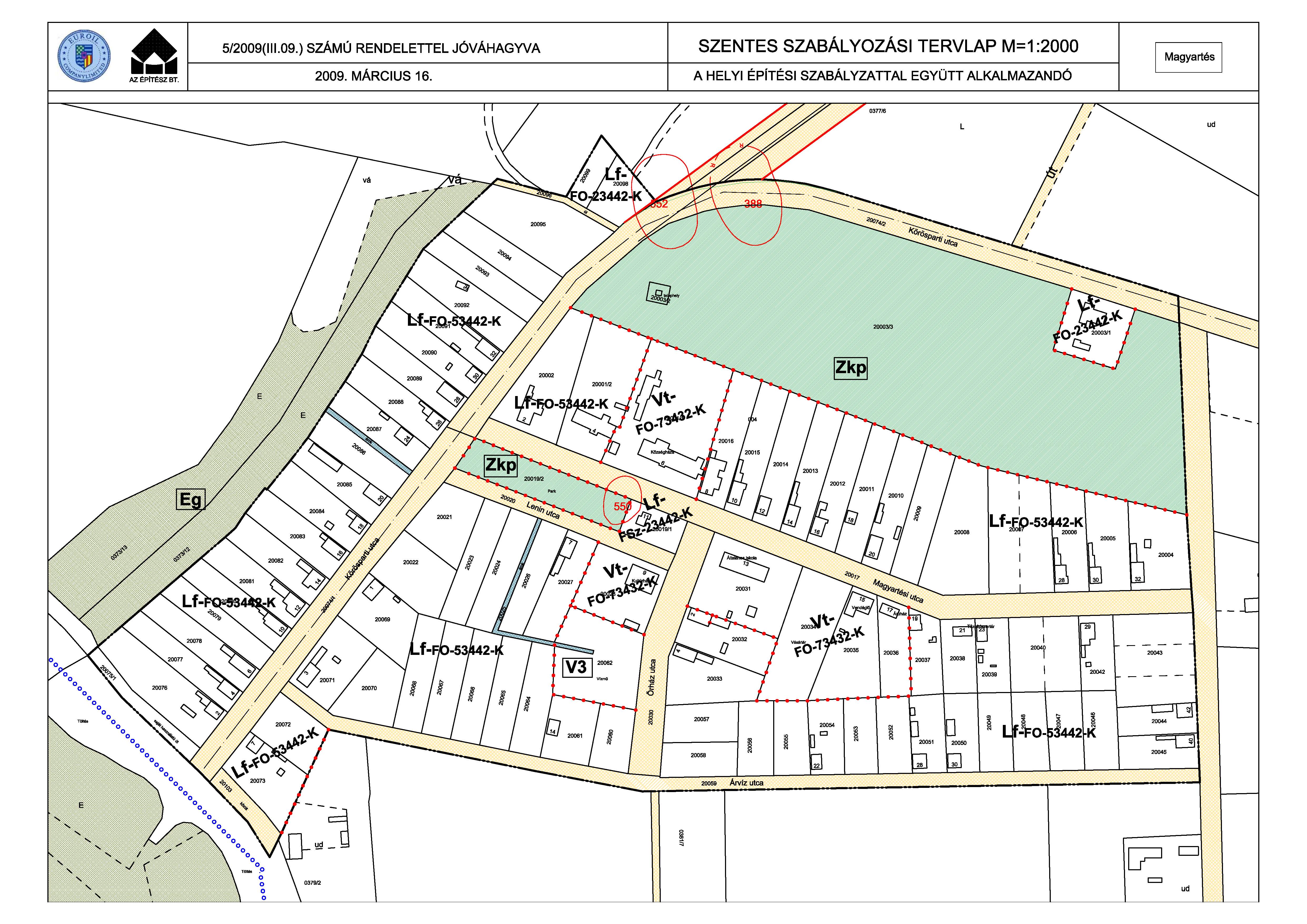
Főmenü   Külterületi szabályozási terv térképe   Belterületi szabályozási terv térképe

 

                                 

 

.